塚口町4
- 新築一戸建て販売価格:6,280万円
 
        - 情報更新日:2025年11月4日
 
	
        
    	
                | 土地面積 | 
        	建物面積 | 
        	間取り | 
                建物構造 | 
        	完成 | 
        
        
            | 123.04m2(約37.2坪) | 
            108.13m2(約32.7坪) | 
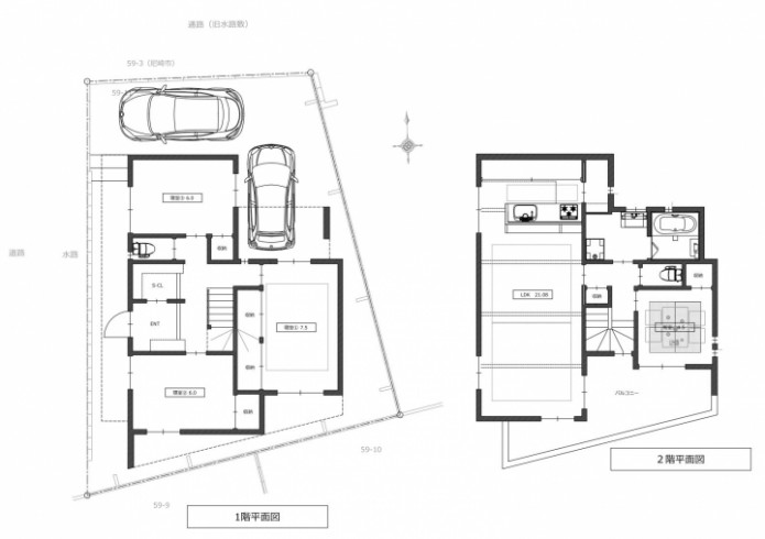
            4LDK | 
            木造 | 
            令和7年10月 | 
        
    
    
	- スタッフおすすめポイント
 
	- 次世代省エネ基準物件です!!
住友ゴム製制振装置「ミライエ」設置!!
塚口小学校・塚口中学校区 
			
        
        - 月々170,767円
ボーナス時のお支払い 0 円 
        - 物件価格をお借入金額とし、35年返済(変動型)、
            年間金利0.775%(5年間の返済額は変わりません)
            金利優遇適応として計算した金額です。 
        - ローンシミュレーション
 
    
    
	- スタッフおすすめポイント
 
	- 次世代省エネ基準物件です!!
住友ゴム製制振装置「ミライエ」設置!!
塚口小学校・塚口中学校区 
    物件概要
    
        
            - 所在地
 
            - 
                塚口町4
                「塚口町]」の他の新築一戸建てを見る
             
        
        
            - 交通
 
            - 
                                    阪急電鉄伊丹線「稲野駅」( 徒歩 14分)
                    「稲野駅」の他の中古戸建てを見る
                                                             
        
                
            - 販売価格
 
            - 6,280万円
 
		
        
            - 完成
 
            - 令和7年10月
 
        
        
            - 建物面積
 
            - 108.13m2(約32.7坪)
 
		
        
            - 間取り
 
            - 4LDK
 
        
        
            - 土地面積
 
            - 123.04m2(約37.2坪)
 
		
        
            - 私道面積
 
            - -
 
        
        
            - 建物構造
 
            - 木造
 
		
        
            - 土地権利
 
            - 所有権
 
        
        
            - 地目
 
            - 宅地
 
		
        
            - 現況
 
            - 完成済
 
        
        
            - 接道状況
 
            - 一方 -
 
		
        
            - 接道方向・幅員
 
            - 西約4.4m -
 
        
        
            - 建ぺい率
 
            - 60
 
		
        
            - 容積率
 
            - 179
 
        
        
            - 都市計画
 
            - -
 
		
        
            - 用途地域
 
            - 第1種中高層住居
 
        
        
            - 小学校区
 
            - 塚口小
 
		
        
            - 中学校区
 
            - 塚口中
 
        
        
            - 駐車場
 
            - 有
 
		
        
            - 引渡し時期
 
            - 即時
 
        
        
            - 取引態様
 
            - -
 
		
        
            - 情報更新日
 
            - 2025年11月4日
 
        
        
            - 物件番号
 
            - 11102532
 
        
        
            - 備考
 
            - -
 
        
             
 
 
この物件と条件が近い物件