東園田町6
- 新築一戸建て販売価格:4,680万円
- 情報更新日:2025年12月16日
| 土地面積 |
建物面積 |
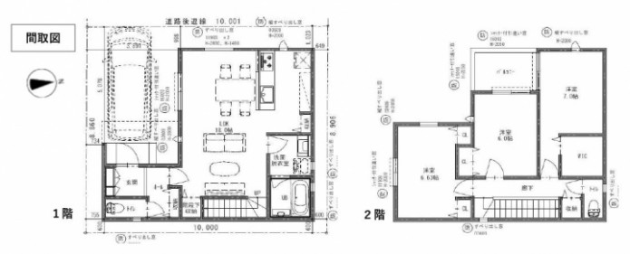
間取り |
建物構造 |
完成 |
| 88.83m2(約26.9坪) |
94.81m2(約28.7坪) |
3LDK |
木造 |
令和7年7月 |
- スタッフおすすめポイント
- 閑静な住宅街です!!
コンビニまで徒歩1分です!!
園和小学校・園田東中学校区(B号地)
- 月々129,401円
ボーナス時のお支払い 0 円
- 物件価格をお借入金額とし、35年返済(変動型)、
年間金利0.875%(5年間の返済額は変わりません)
金利優遇適応として計算した金額です。
- ローンシミュレーション
- スタッフおすすめポイント
- 閑静な住宅街です!!
コンビニまで徒歩1分です!!
園和小学校・園田東中学校区(B号地)
物件概要
- 所在地
-
東園田町6
「東園田町]」の他の新築一戸建てを見る
- 交通
-
阪急電鉄神戸線「園田駅」( 徒歩 10分)
「園田駅」の他の中古戸建てを見る
- 販売価格
- 4,680万円
- 完成
- 令和7年7月
- 建物面積
- 94.81m2(約28.7坪)
- 間取り
- 3LDK
- 土地面積
- 88.83m2(約26.9坪)
- 私道面積
- 20m2(約6坪)
- 建物構造
- 木造
- 土地権利
- 所有権
- 地目
- 宅地
- 現況
- 完成済
- 接道状況
- 一方 -
- 接道方向・幅員
- 西m -
- 建ぺい率
- 60
- 容積率
- 200
- 都市計画
- -
- 用途地域
- 第1種中高層住居
- 小学校区
- 園和小
- 中学校区
- 園田東中
- 駐車場
- 有
- 引渡し時期
- 相談
- 取引態様
- -
- 情報更新日
- 2025年12月16日
- 物件番号
- 10919515
- 備考
- -
この物件と条件が近い物件
-
- 食満7新築一戸建て
- 4,680万円
- 2LDK+S (94.76m2)
- 阪急電鉄神戸線 園田
-
- 食満3新築一戸建て
- 4,598万円
- 4LDK (102.67m2)
- JR福知山線 猪名寺
-
- 浜3新築一戸建て
- 4,580万円
- 2LDK+N (96.05m2)
- JR東海道本線(西日本) 尼崎
-
- 若王寺2新築一戸建て
- 4,560万円
- 3LDK+N (94.57m2)
- 阪急電鉄神戸線 園田