] 印刷する

10919515 新築一戸建て 東園田町6

  • 販売価格: 4,680万円
  • 情報更新日:2025年12月16日

物件写真

物件周辺地図

※おおよその位置を示しています。

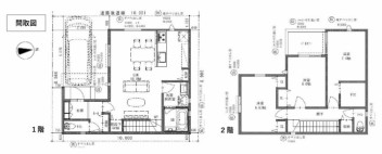
物件概要

  • ■交通  阪急電鉄神戸線 園田駅 徒歩10分 
  • ■販売価格 4,680万円
  • ■築年月 令和7年7月
  • ■建物面積 94.81m2(約28.7坪)
  • ■間取り 3LDK
  • ■土地面積 88.83m2(約26.9坪)
  • ■私道面積 20m2(約6坪)
  • ■建物構造 木造
  • ■土地権利 所有権
  • ■地目 宅地
  • ■現況 完成済
  • ■接道状況 一方 
  • ■接道方向・幅員 西m 
  • ■建ぺい率 60
  • ■容積率 200
  • ■都市計画 
  • ■用途地域 第1種中高層住居
  • ■小学校区 園和小
  • ■中学校区 園田東中
  • ■駐車場 有
  • ■引渡し時期 相談
  • ■取引態様 
【備考】
  • ※ 図面と現況が異なる場合は、現況優先と致します。
  • ※ 掲載物件は成約済み・売却中止となる場合がございます。
  • ※ 成約の際は仲介手数料とこれにかかる消費税が必要です。

6 閉じる