東園田町8 中古戸建て 園田駅 尼崎市の不動産、新築 中古戸建 マンション、土地等の売買情報「春名住建」

HOME > 購入│住まいを探す > 物件一覧 > 東園田町8 中古戸建て 園田駅

東園田町8

中古戸建て販売価格:1,980万円
情報更新日:2026年2月3日
所在地
東園田町8
「東園田町]」の他の中古戸建てを見る
交通
阪急電鉄神戸線園田駅 徒歩 約13分
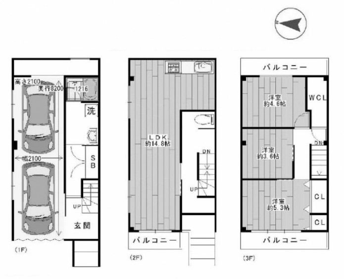
土地面積 建物面積 間取り 建物構造 築年月
58.77m2(約17.8坪) 108.44m2(約32.8坪) 3LDK 鉄骨造 昭和58年
スタッフおすすめポイント
令和7年12月、フルリフォーム済み!!
ガレージ2台駐車可能です!!(サイズに制限があります)
園田東小学校・園田東中学校区
東園田町8
東園田町8
月々54,747円
ボーナス時のお支払い 0 円
物件価格をお借入金額とし、35年返済(変動型)、
年間金利0.875%(5年間の返済額は変わりません)
金利優遇適応として計算した金額です。
ローンシミュレーション
スタッフおすすめポイント
令和7年12月、フルリフォーム済み!!
ガレージ2台駐車可能です!!(サイズに制限があります)
園田東小学校・園田東中学校区

物件概要

所在地
東園田町8
「東園田町]」の他の中古戸建てを見る
交通
阪急電鉄神戸線「園田駅」( 徒歩 13分)
「園田駅」の他の中古戸建てを見る
販売価格
1,980万円
築年月
昭和58年
建物面積
108.44m2(約32.8坪)
間取り
3LDK
土地面積
58.77m2(約17.8坪)
私道面積
19.66m2(約5.9坪)
建物構造
鉄骨造
土地権利
所有権
地目
宅地
現況
空家
接道状況
一方 -
接道方向・幅員
南西約4m -
建ぺい率
60
容積率
200
都市計画
用途地域
第1種住居
小学校区
園田東小
中学校区
園田東中
駐車場
引渡し時期
即時
取引態様
情報更新日
2026年2月3日
物件番号
20131763
備考
※中古テラスハウス

この物件と条件が近い物件

東園田町3中古戸建て
1,900万円
5LDK (110.34m2
阪急電鉄神戸線 園田
京都市伏見区深草南明町中古戸建て
1,580万円
4LDK (77.94m2
京阪本線 鳥羽街道
寝屋川市豊能町中古戸建て
1,380万円
4DK (71.66m2
京阪本線 寝屋川市
瓦宮2中古戸建て
2,700万円
4LDK (92.87m2
阪急電鉄神戸線 園田