今福2 新築一戸建て 杭瀬駅 尼崎市の不動産、新築 中古戸建 マンション、土地等の売買情報「春名住建」

HOME > 購入│住まいを探す > 物件一覧 > 今福2 新築一戸建て 杭瀬駅

今福2

新築一戸建て販売価格:3,280万円
情報更新日:2025年11月11日
所在地
今福2
「今福]」の他の新築一戸建てを見る
交通
阪神電気鉄道本線杭瀬駅 徒歩 約11分
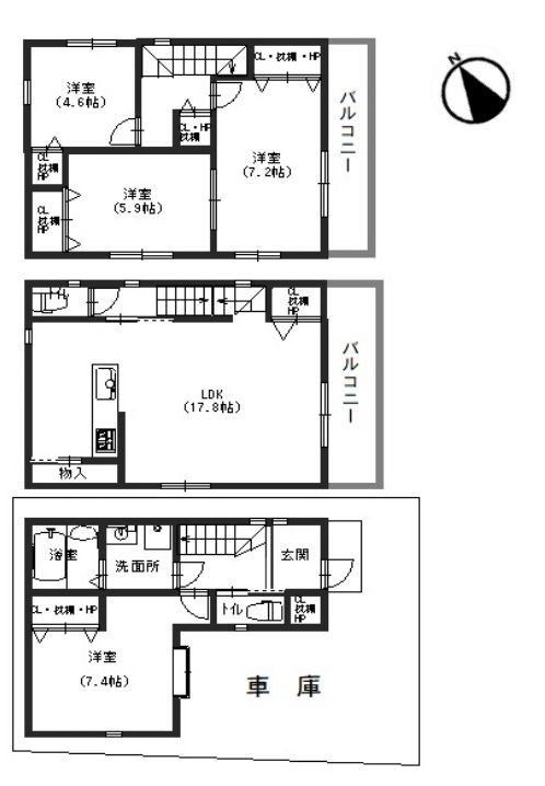
土地面積 建物面積 間取り 建物構造 完成
65.46m2(約19.8坪) 116.68m2(約35.3坪) 4LDK 木造 令和7年10月
スタッフおすすめポイント
耐震等級3、省エネ適合住宅です!!
フラット35SプランAタイプ適応!!
杭瀬小学校・小田中学校区。B号地
今福2
今福2
月々90,691円
ボーナス時のお支払い 0 円
物件価格をお借入金額とし、35年返済(変動型)、
年間金利0.875%(5年間の返済額は変わりません)
金利優遇適応として計算した金額です。
ローンシミュレーション
スタッフおすすめポイント
耐震等級3、省エネ適合住宅です!!
フラット35SプランAタイプ適応!!
杭瀬小学校・小田中学校区。B号地

物件概要

所在地
今福2
「今福]」の他の新築一戸建てを見る
交通
阪神電気鉄道本線「杭瀬駅」( 徒歩 11分)
「杭瀬駅」の他の中古戸建てを見る
販売価格
3,280万円
完成
令和7年10月
建物面積
116.68m2(約35.3坪)
間取り
4LDK
土地面積
65.46m2(約19.8坪)
私道面積
7.26m2(約2.2坪)
建物構造
木造
土地権利
所有権
地目
宅地
現況
空家
接道状況
一方 -
接道方向・幅員
南東約4m -
建ぺい率
60
容積率
200
都市計画
用途地域
第1種住居
小学校区
杭瀬小
中学校区
小田中
駐車場
引渡し時期
即時
取引態様
情報更新日
2025年11月11日
物件番号
11109533
備考

この物件と条件が近い物件

東園田町7新築一戸建て
2,880万円
3LDK (97.6m2
阪急電鉄神戸線 園田
食満3新築一戸建て
3,880万円
4LDK (116.91m2
阪急電鉄神戸線 園田
次屋1新築一戸建て
4,080万円
3LDK (98.89m2
JR東海道本線(西日本) 尼崎
杭瀬南新町1新築一戸建て
4,180万円
4LDK (94.18m2
阪神電気鉄道本線 杭瀬