東園田町8 新築一戸建て 園田駅 尼崎市の不動産、新築 中古戸建 マンション、土地等の売買情報「春名住建」

HOME > 購入│住まいを探す > 物件一覧 > 東園田町8 新築一戸建て 園田駅

東園田町8

新築一戸建て販売価格:4,080万円
情報更新日:
所在地
東園田町8
「東園田町]」の他の新築一戸建てを見る
交通
阪急電鉄神戸線園田駅 徒歩 約9分
土地面積 建物面積 間取り 建物構造 完成
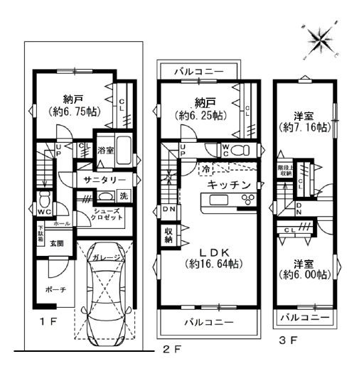
73.04m2(約22.1坪) 125.17m2(約37.9坪) 2LDK+2S 木造 令和7年9月
スタッフおすすめポイント
LDK広々約16.64帖!!
玄関にシューズクローゼット付!!
園和小学校・園田東中学校
東園田町8
月々110,944円
ボーナス時のお支払い 0 円
物件価格をお借入金額とし、35年返済(変動型)、
年間金利0.775%(5年間の返済額は変わりません)
金利優遇適応として計算した金額です。
ローンシミュレーション
スタッフおすすめポイント
LDK広々約16.64帖!!
玄関にシューズクローゼット付!!
園和小学校・園田東中学校

物件概要

所在地
東園田町8
「東園田町]」の他の新築一戸建てを見る
交通
阪急電鉄神戸線「園田駅」( 徒歩 9分)
「園田駅」の他の中古戸建てを見る
販売価格
4,080万円
完成
令和7年9月
建物面積
125.17m2(約37.9坪)
間取り
2LDK+2S
土地面積
73.04m2(約22.1坪)
私道面積
建物構造
木造
土地権利
所有権
地目
宅地
現況
完成済
接道状況
一方 -
接道方向・幅員
南東約5.9m -
建ぺい率
60
容積率
200
都市計画
用途地域
第1種中高層住居
小学校区
園和小
中学校区
園田東中
駐車場
引渡し時期
相談
取引態様
情報更新日
物件番号
11012526
備考

この物件と条件が近い物件

瓦宮2新築一戸建て
4,090万円
4LDK (98.01m2
阪急電鉄神戸線 園田
田能4新築一戸建て
4,240万円
4LDK (94.77m2
阪急電鉄神戸線 園田
食満3新築一戸建て
3,880万円
4LDK (116.91m2
阪急電鉄神戸線 園田
南清水新築一戸建て
4,380万円
3LDK (85.7m2
JR福知山線 猪名寺