] 印刷する

30313392 中古マンション 尾浜町1

  • 販売価格: 2,080万円
  • 情報更新日:

物件写真

物件周辺地図

※おおよその位置を示しています。

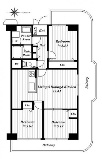
物件概要

  • ■交通  阪急電鉄神戸線 塚口駅 バス7分 徒歩3分 
  • ■販売価格 2,080万円
  • ■総戸数 320
  • ■専有面積 66m2(約20坪)
  • ■間取り 3LDK
  • ■バルコニー面積 27.6m2(約8.3坪)
  • ■バルコニー向き 北・東・西
  • ■建物構造 SRC造
  • ■所在階/階数 3階/10階
  • ■築年月 昭和55年8月
  • ■土地権利 所有権
  • ■現況 空室
  • ■駐車場 空無
  • ■管理費 5,940円/月
  • ■修繕積立金 9,990円/月
  • ■管理会社 グローバルコミュニティ㈱
  • ■管理形態 全部委託
  • ■小学校区 名和小
  • ■中学校区 大成中
  • ■取引態様 
  • ■情報更新日 
  • ■物件番号 30313392
  • ■引渡し時期 即時
【備考】
  • ※ 図面と現況が異なる場合は、現況優先と致します。
  • ※ 掲載物件は成約済み・売却中止となる場合がございます。
  • ※ 成約の際は仲介手数料とこれにかかる消費税が必要です。

6 閉じる