] 印刷する

20315773 中古戸建て 東園田町2

  • 販売価格: 3,999万円
  • 情報更新日:2026年4月27日

物件写真

物件周辺地図

※おおよその位置を示しています。

物件概要

  • ■交通  阪急電鉄神戸線 園田駅 徒歩13分 
  • ■販売価格 3,999万円
  • ■築年月 平成18年10月
  • ■建物面積 116.63m2(約35.3坪)
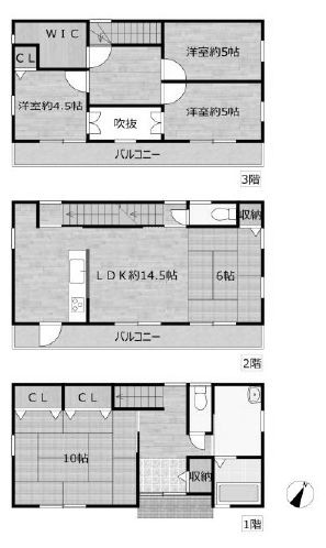
  • ■間取り 4SLDK
  • ■土地面積 76.66m2(約23.2坪)
  • ■私道面積 
  • ■建物構造 木造
  • ■土地権利 所有権
  • ■地目 宅地
  • ■現況 空家
  • ■接道状況 一方 
  • ■接道方向・幅員 北東約5.9m 
  • ■建ぺい率 60
  • ■容積率 200
  • ■都市計画 
  • ■用途地域 第1種中高層住居
  • ■小学校区 園和北小
  • ■中学校区 園田東中
  • ■駐車場 有
  • ■引渡し時期 即時
  • ■取引態様 
【備考】
  • ※ 図面と現況が異なる場合は、現況優先と致します。
  • ※ 掲載物件は成約済み・売却中止となる場合がございます。
  • ※ 成約の際は仲介手数料とこれにかかる消費税が必要です。

6 閉じる